Большая электронная библиотека для радиолюбителя

Трансформатор ТАН-138-127/220-50

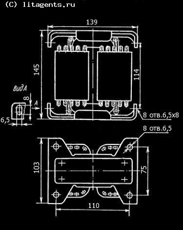
  • Сердечник: ПЛ25х50х80
  • Мощность: 440 Вт
  • Ток первичной обмотки: 3,9/2,3 А
  • Масса: 6,3 кг
Выводы обмотокНапряжение, ВДопустимый ток, А
7-83550,285
16-173550,285
9-102000,25
18-192000,25
11-12250,285
20-21250,285
13-14(15)5(6,3)10,0
22-23(24)5(6,3)10,0
Таб.1. Электрические параметры трансформатора ТAН138

Трансформаторы ТAН138 на 220 В выпускаются начиная с 1979 г., они имеют одну первичную обмотку и такую же нумерацию выводов, как у трансформаторов на 127/220 В.

Электрические параметры, габаритные и установочные размеры, а также масса трансформаторов ТAН138 на 220 В такие же, как у соответствующих трансформаторов ТAН138 на 127/220 В.

Напряжение на отводах первичных обмоток трансформаторов ТAН138 на 127/220 В:

  • между выводами 1 и 2, 4 и 5 - 110 В;
  • между выводами 2 и 3, 5 и 6 - 7 В.

При использовании трансформаторов ТAН138-127/220 на 127 В необходимо:

  • соединить выводы 1 и 6, 3 и 4, при этом магнитные потоки первичных обмоток обоих стержней суммируются;
  • подать напряжение 127 В на выводы 1 и 3 или 4 и 6.

При использовании трансформаторов ТAН138-127/220 на 220 В необходимо:

  • соединить выводы 2 и 5;
  • подать напряжение 220 В на выводы 1 и 4.

Электрическая принципиальная схема анодно-накального трансформатора ТAН138
 Рис1. Электрическая принципиальная схема анодно-накального трансформатора ТAН138 на 50 Гц, 127/220 В 
Электрическая принципиальная схема анодно-накального трансформатора ТAН138
 Рис2. Электрическая принципиальная схема анодно-накального трансформатора ТAН138 на 50 Гц, 220 В 

В трансформаторах ТAН138 возможно последовательное и параллельное согласное соединение вторичных обмоток. Накальные обмотки можно соединять параллельно для увеличения тока накала.

Анодные обмотки можно соединять последовательно для получения необходимого выходного напряжения, а также параллельно для увеличения нагрузочной способности обмоток. При последовательном соединении обмоток с разными допустимыми токами нагрузочный ток не должен превышать минимального допустимого. Параллельное соединение может осуществляться тех анодных обмоток, напряжение на зажимах которых одинаковое.

Конструкция анодно-накального трансформатора ТAН138
 Рис3. Конструкция анодно-накального трансформатора ТAН138 на 50 Гц, 127/220 В 


Цена на алмазную резку бетона алмазная резка бетона цена.